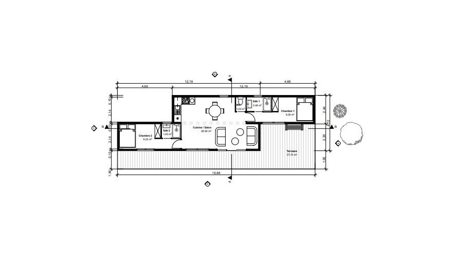
Plan Maison Container 40 Pieds

Salut tout le monde ! Vous avez déjà joué aux Lego, non ? Se créer une maison, pièce par pièce, en laissant libre cours à son imagination ? Eh bien, imaginez maintenant que vos briques Lego sont des containers maritimes de 40 pieds. C'est un peu l'idée derrière un "Plan Maison Container 40 Pieds". C'est bien plus cool qu'il n'y paraît, croyez-moi !
Alors, pourquoi s'embêter avec des containers, me direz-vous ? Imaginez que vous rêvez d'une petite maison de vacances au bord du lac, mais que votre budget est un peu... limité. Un container de 40 pieds, c'est une structure solide et étanche, déjà existante, que vous pouvez transformer en un espace de vie confortable. C'est comme acheter une toile vierge géante pour votre chef-d'œuvre architectural !
Mais concrètement, c'est quoi un "Plan Maison Container 40 Pieds" ?
C'est un ensemble de plans, de schémas et de conseils pour transformer ce container en une véritable maison. C'est comme avoir une recette de cuisine... sauf que au lieu d'un gâteau, vous préparez une maison ! Le plan vous indique où placer les fenêtres, les portes, comment isoler le container (parce que personne ne veut vivre dans un four en été, n'est-ce pas ?), et comment agencer l'intérieur. Pensez à l'aménagement d'un studio, mais avec des murs en acier !
Must Read
On peut y faire un studio étudiant super cool et design, un atelier d'artiste lumineux, une chambre d'amis originale, ou même une extension pour votre maison principale. Les possibilités sont presque infinies !
Pourquoi devriez-vous vous y intéresser ?
Plusieurs raisons ! D'abord, le côté économique. Un container, c'est souvent moins cher qu'une construction traditionnelle. Ensuite, le côté écologique. Vous recyclez un objet existant au lieu d'utiliser de nouvelles matières premières. Enfin, le côté créatif. C'est l'occasion de laisser libre cours à votre imagination et de créer un espace unique qui vous ressemble.

Imaginez le visage de vos amis quand ils découvriront votre maison container design et écolo ! Vous serez le roi (ou la reine) du recyclage chic ! C'est un peu comme avoir un dressing rempli de vêtements vintage… mais à la place, c’est une maison ultra moderne.
Bien sûr, il y a quelques défis à relever. L'isolation, l'approvisionnement en eau et en électricité, les autorisations administratives... Mais avec un bon "Plan Maison Container 40 Pieds" et un peu d'huile de coude, rien n'est impossible ! Alors, prêts à relever le défi et à construire la maison de vos rêves... en container ?
